Baukultur und Bewusstheit
by Regine Geibel
2004-2026 22

Anzeige

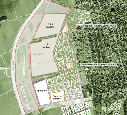
In Freiham geht es weiter

Der Stadtrat stimmt den Vorschlägen des Preisgerichts zu. Enger Zeitrahmen für den Bildungscampus und den Sportpark. Beide Projekte sollen bereits zum Schuljahr 2018/2019 fertiggestellt sein.

Für beide Projekte hatte das Baureferat im Auftrag des Stadtrates einen zweiphasigen Realisierungswettbewerb mit vorgeschaltetem EU-weitem Bewerbungsverfahren durchgeführt, der am 27.02.2015 entschieden wurde.

Entscheidung des Preisgerichts

Der 1. Preis für den Sportpark ging einstimmig an:

Georg·Scheel·Wetzel Architekten, Berlin
mit Lützow 7 C.Müller J.Wehberg Garten- und Landschaftsarchitekten, Berlin

Und für den Bildungscampus an:

Felix Schürmann Ellen Dettinger Architekten, München
mit Keller Damm Roser Landschaftsarchitekten Stadtplaner, München

Sie wurden vom Bewertungs-Gremium des Baureferats einvernehmlich zur weiteren Bearbeitung empfohlen. Der Stadtrat folgte dem Vorschlag der Verwaltung. Entsprechend wurden die Preisträger beauftragt, die Entwurfsplanung durchzuführen und auch die Genehmigungs- und Ausführungsplanung zu beauftragen.

Die Projekte im Einzelnen

Im Bildungscampus sind eine Grundschule mit Doppelsporthalle, ein Förder- und Kompetenzzentrum, eine Realschule und ein Gymnasium geplant. Im Sportpark entstehen drei Dreifach-Sporthallen, eine davon als geschlossene Sportarena mit 2.000 Zuschauerplätzen, ein Schulschwimmbad, Mehrzweckräume und ein Vereinsheim mit Gaststätte sowie eine Freisportanlage mit Betriebsgebäude und eine Kletter-/Boulder-Anlage. Campus und Sportanlagen werden in ein Netz aus öffentlichen Grünanlagen integriert.

Das Baureferat plant und baut in Freiham außerdem einen 60 Hektar großen Landschaftspark, weitere Grundschulen sowie Straßen und Plätze. Im Endausbau entsteht in Freiham auf einer Fläche von rund 190 Hektar ein neuer Stadtteil für zirka 20.000 Menschen.

Weitere Informationen zu Aufgabenstellung, Ergebnissen und Ablauf des Realisierungswettbewerbes sowie zu den ausführlichen Beurteilungen des Preisgerichts sind u.a. im Internet unter www.muenchen.de/baureferat (unter Wettbewerbe) abrufbar. Über die laufenden Projekte des Baureferats in Freiham informiert eine eigene Website: www.muenchen.de/bau/freiham