Baukultur und Bewusstheit
by Regine Geibel
2004-2026 22

Anzeige

Neue Grundschulen für München

Am Freitag, den 11. Oktober wurde der Realisierungswettbewerb der Landeshauptstadt München für den Neubau von vier Grundschulen in modularer Bauweise entschieden. Konkret handelt es sich um folgende Projekte:

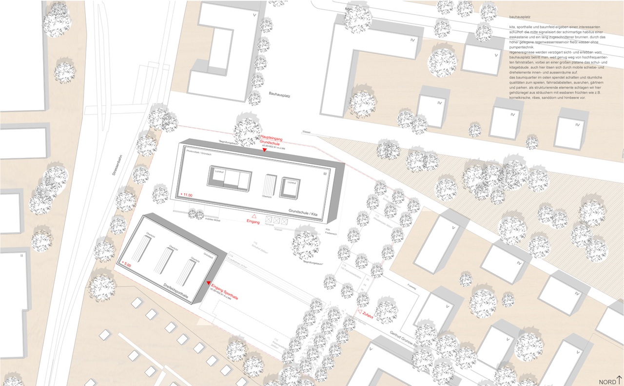
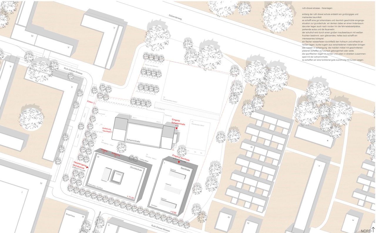
- Neubau einer dreizügigen Grundschule an der Ruth-Drexel-Straße
(Teilfläche der ehemaligen Prinz-Eugen-Kaserne) mit Räumen für die ganztägige Betreuung sowie einer Dreifachsporthalle und Freisportanlagen im 13. Stadtbezirk (Bogenhausen)

- Neubau einer fünfzügigen Grundschule an der Domagkstraße
(Teilfläche der ehemaligen Funkkaserne) mit Räumen für ganztägige Betreuung sowie einer Dreifachsporthalle mit Freisportanlagen und eines Hauses für Kinder mit drei Krippen- und drei Kindergartengruppen im 12. Stadtbezirk (Schwabing – Freimann)

- Neubau der fünfzügigen Grundschule Freiham II (Mitte)
Am Quartierszentrum mit Räumen für ganztägige Betreuung sowie einer Zweifachsporthalle mit Freisportanlagen und eines Hauses für Kinder mit drei Krippen- und drei Kindergartengruppen im 22. Stadtbezirk (Aubing – Lochhausen – Langwied)

- Neubau der fünfzügigen Grundschule Freiham III (Nord)
An der „Aubinger Allee" mit Räumen für ganztägige Betreuung sowie einer Zweifachsporthalle mit Freisportanlagen im 22. Stadtbezirk (Aubing – Lochhausen – Langwied)

Entscheidung des Preisgerichtes

Das Preisgericht unter dem Vorsitz von Professor Herbert Meyer-Sternberg bewertete in zwei Preisgerichtssitzungen alle 21 Lösungsvorschläge und vergab am 11. Oktober einstimmig fünf Preise:

1. Preis: 
- wulf architekten GmbH, Stuttgart, mit
- Johann Senner, Diplomingenieur (FH), Planstatt für Landschaftsarchitektur und Umweltplanung, Überlingen

2. Preis: 
nicht vergeben

3. Preis: 
- Borghammer, Jana, Wohlleber Architekten, Zimmern ob Rottweil, mit
- w+p landschaften, freie Landschaftsarchitekten, Berlin 

3. Preis: 
- Numrich Albrecht Klumpp, Gesellschaft von Architekten mbH, Berlin, mit
- Diplomingenieur Guido Hager, Landschaftsarchitekt, Berlin

4. Preis: 
- Code unique Architekten BDA, Dresden, mit
- Till Rehwaldt, Landschaftsarchitekt, Dresden

5. Preis: 
- Professor Dipl.-Ing. Architekt BDA Frank Hausmann, Aachen, mit
- Latz + Partner Landschaftsarchitekten, Kranzberg

Empfehlung des Preisgerichtes

Das Preisgericht kam zu dem Ergebnis, dass der 1. Preisträger ein sehr schlüssiges Lernhausmodul anbietet. Vier Klassenzimmer und die Räume für die Ganztagesbetreuung sind konsequent um einen innenliegenden Pausenbereich und einen ausreichend großen Lichthof angeordnet. Dem Siegerentwurf gelingt es, die Lernhausmodule an den vier unterschiedlichen Standorten jeweils gut zu kombinieren und damit überzeugende städtebauliche Lösungen zu schaffen. Die Entwürfe der Schulgebäude beeindrucken durch klar strukturierte Baukörper und eine angenehme und zurückhaltende Architektursprache. Das Preisgericht empfiehlt daher einstimmig, die Entwürfe des 1. Preisträgers zu realisieren und diesen mit der weiteren Planung zu beauftragen.

Nachfolgend ist auszugsweise die Beurteilung des Beitrages des 1. Preisträgers durch das Preisgericht wiedergegeben: „Die Entwurfsverfasser bieten ein sehr schlüssiges Lernhausmodul an. Konsequent sind die vier Klassenräume und die Ganztagsfunktionen um die Pausenmitte mit unmittelbarer Belichtung über einen ausreichend dimensionierten Lichthof angeordnet. [...] Die umlaufenden Balkone bieten den erforderlichen Fluchtweg im Brandfall für alle Räume des Lernhaus- moduls, schaffen Flexibilität in der Kombinierbarkeit und zusätzliche Qualität durch einen unmittelbaren Zugang für die Kinder ins Freie. [...] Es entstehen zentrale Eingangsbereiche mit Gemeinschaftszonen im EG, die eine angemessene Großzügigkeit und Übersichtlichkeit für die Nutzungen (auch extern) ermöglichen. [...] Die Addition der Module schafft klare Baukörperstrukturen sowohl in Kombination mit freistehender als auch integrierter Sporthalle. [...] Dennoch entstehen für die einzelnen Grundstückssituationen mit den jeweiligen Zugangsanforderungen individuelle Lösungen. [...]

Die Konstruktion aus einem tragenden Stahlbetonskelett und den Ausbauelementen in Holz setzt das Lernhausmodul konsequent und mit durchgängigem Raster über alle Geschosse um. [...] Die gewählte Konstruktion lässt eine wirtschaftliche Bauweise aufgrund der Kompaktheit der Gebäude und damit geringeren Außenfassadenflächen erwarten. [...]

Auf Basis eines kompakten A/V-Verhältnis ist der Gesamt-Endenergiebedarf [...] durchschnittlichen bis gering, wobei der spezifische Bedarf sehr gute Voraussetzungen für einen energieeffizienten Betrieb aufweist. [...] Im Wettbewerbsmittel der engeren Wahl liegt das Energie- und Nachhaltigkeitskonzept des Beitrages insgesamt im günstigen Bereich. [...]"

Es werden Schulfreiflächen angeboten, die in ihrer Zuordnung und Proportionen positiv bewertet werden. Die Zugänge in die Schulen sind gut auffindbar, haben eine klare Adresse und hohe Raumqualität. Die Sportflächen, Parkplätze und Pausenhöfe sind klar zugeschnitten und liegen funktional richtig. Die Raumbildung mit den Baumreihen und Baumquartieren wird positiv bewertet."

Ausblick

Es ist geplant, dem Stadtrat das Wettbewerbsergebnis im Dezember 2013 bekannt zu geben und dem Stadtrat vorzuschlagen, entsprechend der Empfehlung des Preisgerichtes den 1. Preisträger mit der Vorplanung der vier Grundschulen in modularer Bauweise zu beauftragen.

Ausstellung

Die Arbeiten der Wettbewerbsteilnehmer werden in der Halle des Technischen Rathauses vom 18. Oktober bis einschließlich 31. Oktober ausgestellt. Die Öffnungszeiten sind Montag bis Freitag von 8 bis 20 Uhr. Die Ausstellung wird am 17. Oktober um 17 Uhr durch Baureferentin Rosemarie Hingerl eröffnet. Ab diesem Zeitpunkt werden Abbildungen der Entwürfe auch an dieser Stelle veröffentlicht.

Weitere Informationen zum Realisierungswettbewerb für den Neubau von vier Grundschulen in modularer Bauweise sind unter www.muenchen.de/baureferat abrufbar.