Baukultur und Bewusstheit
by Regine Geibel
2004-2026 22

Parkstadt Schwabing

Projekt mit meinem Profil verknüpfen oder Felder ausfüllen

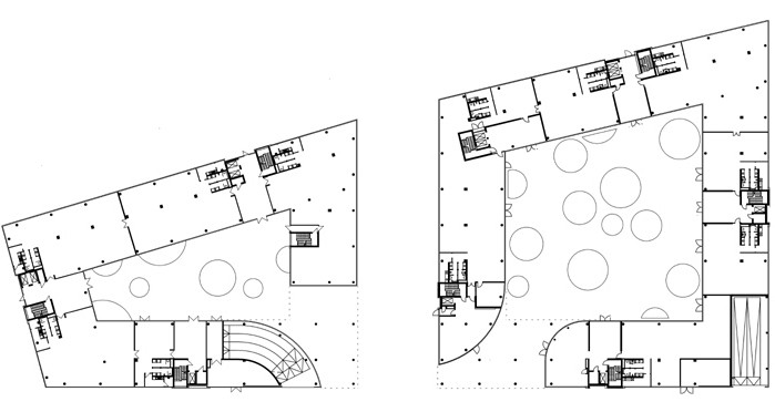
Neubau eines Verwaltungsgebäudes mit Gewerbeanteil. Das Gebäude steht am nördlichen Kopfende der Parkstadt Schwabing und bildet den städtebaulichen Abschluss des neuen Stadtviertels.

  • Standort

    Wilhelm-Wagenfeld-Straße 26-30
    80807 München
    Kartenansicht (Google Maps)

  • Bauherr

    KIB Projekt GmbH, Nürnberg

  • Fertigstellung

    2008

  • Baukosten

    48 Mio €

  • Baumaßnahme

    Neubau

  • Kennzahlen

    Geschoßfläche 25.000 m²

  • Andere Fakten

    Ein Projekt der Architektouren 2009