Baukultur und Bewusstheit
by Regine Geibel
2004-2026 22

Rathaus Neubau und Platzgestaltung in Bad Aibling

Bestandserfassung Untergeschoss

cad planpartner bauplanungs gmbh

Projekt mit meinem Profil verknüpfen oder Felder ausfüllen

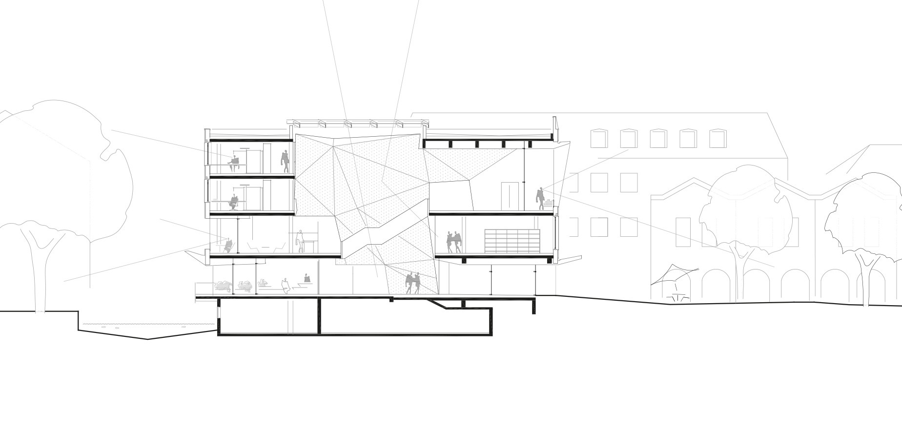
Das Rathaus definiert gemeinsam mit dem angrenzenden Marienplatz das Zentrum der oberbayerischen Bäderstadt Bad Aibling neu.

Das ganzheitliche Entwurfskonzept des neuen Rathauses beinhaltet die Nutzung des erhalten gebliebenen Kellers des alten Rathauses von 1970 samt Gründung, dem auch die leichte Konstruktion als Betonskelettbau mit Holzwänden, beplankt mit auffallenden Holztafeln geschuldet ist.

Der helle Granit des Marienplatzes zieht sich in das Gebäudeinnere als ein öffentlicher Weg, der durch das Rathaus führt, gesäumt von Läden und einem Café. Er geht über in das mehrgeschossige Atrium, das die Nutzungen des Rathauses als fließender Raum für zufällige oder geplante Begegnungen verbindet. Stadtbücherei, Lesecafé, Bürgerservice, Trauzimmer, Büroräume und Sitzungssäle gliedern sich auf den einzelnen Ebenen an. Gleichzeitig wird durch das Atrium Tageslicht in das Innere des Hauses gebracht, gelenkt und reflektiert insbesondere von der nördlichen Atriumwand. Die skulpturalen Elemente der Wand setzen sich zu Brüstungen, Sitzbänken und Theken fort.

Das Rathaus wird mit Holzpellets beheizt und mit dem vorbeifließenden Bach gekühlt.

Konsequente Einsparung von Nutzenergie durch mechanische Lüftung mit hocheffizienter Wärmerückgewinnung, LEDs, Bauteilaktivierung zum Heizen und Kühlen, Biomasse-Kessel und Kälte aus dem Mühlbach vervollständigen das ganzheitliche Konzept.

  • Standort

    Marienplatz 1
    83043 Bad Aibling
    Kartenansicht (Google Maps)

  • Bauherr

    Stadt Bad Aibling

  • Baubeginn

    2009

  • Fertigstellung

    2012

  • Baumaßnahme

    Neubau

  • Kennzahlen

    Rathaus BGF: 4.300 m²
    Rathaus BRI: 15.000m³
    Marienplatz Fläche: 6.000 m²