Baukultur und Bewusstheit
by Regine Geibel
2004-2026 22

Haus CC

Projekt mit meinem Profil verknüpfen oder Felder ausfüllen

Das Wohnhaus CC liegt zentral in einem ca. 1.400m² grossen Grundstück im Westen Münchens.

Der Baukörper tritt zur Strassenseite durch seine gestaffelte Form zurückhaltend und massstäblich in Erscheinung. Vor- und Hauptgebäude mit Garage bilden einen Vorplatz, der zum  Haupteingang führt.

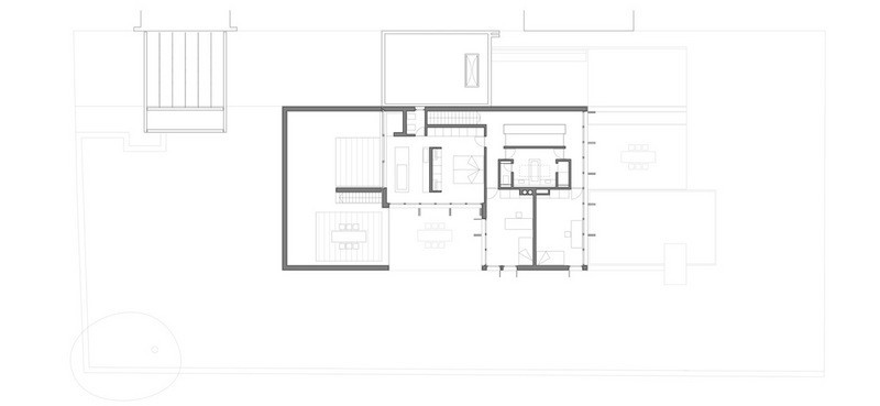
Das Erdgeschoss beschreibt eine U-Form und dient dem Wohnen. Ein nach Süden offenes Atrium stellt zusammen mit dem zentral gelegenen Essbereich das Herz des Familienlebens dar. Die Innenräume fliessen ineinander. Vom Küchentresen aus können so alle Bereiche überblickt werden. Ein großzügiger Luftraum schafft eine vertikale Anbindung des Kochbereichs an das Obergeschoss und ermöglicht so direkten Tageslichteinfall über ein Oberlicht.

Im Osten setzt sich das grosse Wohnzimmer in der Wasserfläche des Schwimmbeckens im Grundstück fort. Die Terrasse schliesst seitlich an und stellt die Verbindung zum Kochbereich her.

Das Obergeschoss liegt als L-Form auf dem Erdgeschoss und nimmt die Privatbereiche auf. Es gibt nach Westen eine blickgeschützte Dachterrasse frei, die zum Elternbereich gehört und über eine Aussentreppe mit dem Atrium verbunden ist.

Gäste- und Wellnessbereich befinden sich im Souterrain. Ein nach osten flachwinklig terrassierter Tiefhof sorgt für eine grosszügige Belichtung und Belüftung. So entstehen in alle Himmelsrichtungen und auf allen Geschossen miteinander verbundene Bereiche mit unterschiedlichen Qualitäten und Nutzungsmöglichkeiten.

Die Fassade verzichtet auf jegliche Ornamentik und ist allseitig mit vorvergrauten Lärchenlatten bekleidet. Die weitere Vergrauung ist beabsichtigt und wird das Gebäude über die Zeit noch stärker in seine Umgebung einbinden. Eigens entwickelt wurden elektrisch betriebene Faltschiebeläden, die sich - entgegen der bisher marktüblichen Antriebe - vollkommen schliessen lassen. Je nach Stellung dieser Läden zeigt das Gebäude unterschiedliche Gesichter.

Das Wohnhaus ist ausgestattet mit modernster Technik: Bus-System, Solarkollektoren, kontrollierte Wohnraumlüftung, Bauteilaktivierung.

  • Standort

    München

  • Bauherr

    privat

  • Baubeginn

    2007

  • Fertigstellung

    2008

  • Baumaßnahme

    Neubau

  • Kennzahlen

    Nutzfläche: 450 m²

  • Andere Fakten

    Projektarchitekt: Dirk Härle
    Fotos:
    Gunter Bieringer